Bilocale in vendita

Roma, Ad. Lungotevere - Prati
€ 540.000
2 locali 2 locali
50 Mq 50 Mq
1 bagno 1 bagno

Bilocale in vendita

Roma, Ad. Lungotevere - Prati

Descrizione annuncio

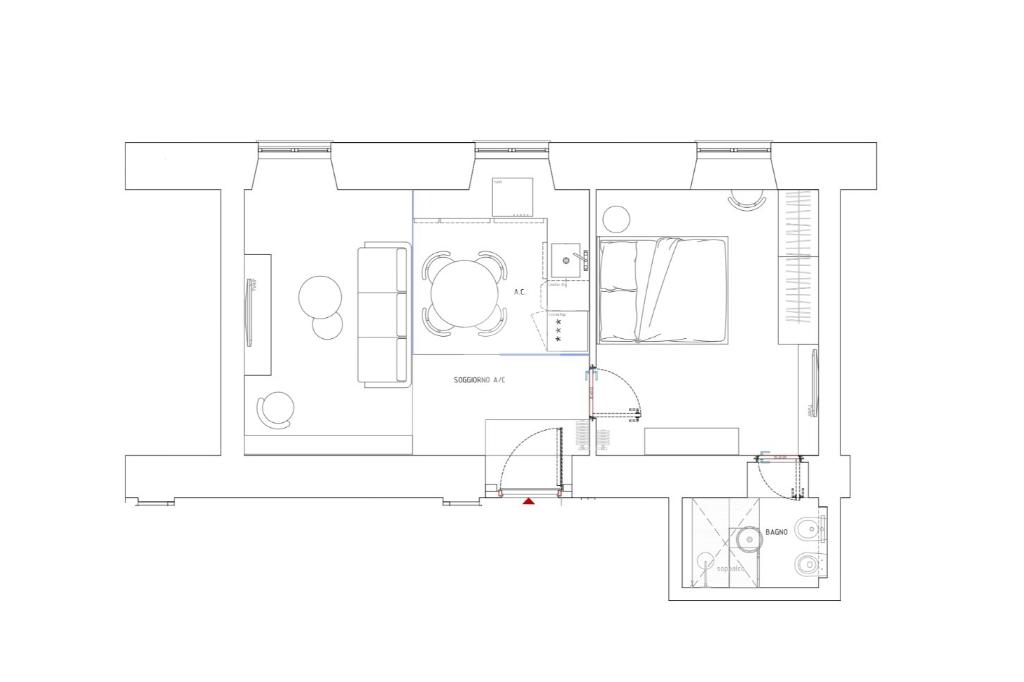
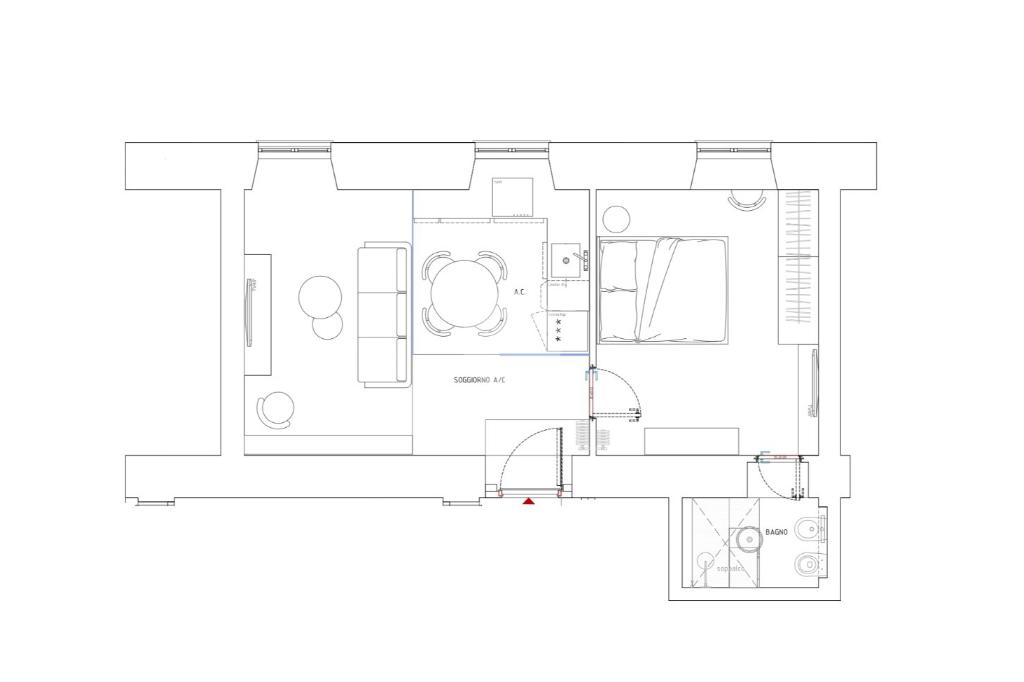
AD. LUNGOTEVERE - Nel cuore del quartiere Prati, a pochi passi da Piazza Mazzini, proponiamo in vendita un bilocale di 50 mq completamente ristrutturato.
L’appartamento è composto da ingresso, soggiorno con angolo cottura, camera da letto e servizio, con ambienti ben distribuiti e funzionali, ideali sia per l’uso abitativo che per la locazione. La recente ristrutturazione valorizza gli spazi con finiture moderne e un’impostazione pratica, rendendo l’immobile pronto per essere abitato senza necessità di ulteriori interventi. Negozi, servizi, studi professionali, ristoranti e collegamenti sono tutti comodamente raggiungibili a piedi, così come il Vaticano e il centro storico. La metratura contenuta, unita alla posizione centrale e alla forte richiesta della zona, rende questa soluzione ideale sia come abitazione principale sia come investimento ad uso ricettivo o locazione tradizionale, con ottime prospettive di rendimento. Una proposta equilibrata, moderna e ben posizionata, in una delle aree più richieste di Roma Prati.

Perchè scegliere questo immobile:

-Posizione elegante e signorile,

-Soluzione pronta per essere abitata,

-Ottima sia per uso abitativo che per investimento.

Classe G Ep175 Kwh/mq/a.

Prenota ora la tua visita al 375.59.46.233

Mostra tutto

Nelle vicinanze

Trasporto pubblico Trasporto pubblico
Lepanto
Lepanto
330 m
Flaminio
Flaminio
860 m
Flaminio
Flaminio
800 m
Euclide
Euclide
1,8 Km
Ministero Marina
Ministero Marina
620 m
Ricariche auto elettriche Ricariche auto elettriche
Roma Mazzini | EnelX
280 m
Eneldrive Cola di Rienzo
610 m
Roma Piazza del Popolo | EnelX
820 m
Garage Properzio | EnelX
950 m
Roma Clodio | EnelX
1,1 Km
Scuole Scuole
Scuole
300 m
Liceo Classico Terenzio Mamiani
300 m
Scuola Media Giuseppe Gioachino Belli
310 m
Scuola Media Col di Lana
330 m
Istituto Magistrale Gelasio Caetani
340 m
Farmacia Farmacia
Farmacia Mazzini
350 m
Farmacia Fettarappa
530 m
Farmacia
610 m
Farmacia
630 m
Farmacia Fabio Massimo
670 m
Ospedali Ospedali
Casa di Cura Santa Famiglia
600 m
Clinica Valle Giulia
1,3 Km
Ospedale Santo Spirito in Sassia
1,5 Km
Pronto Soccorso Ospedale "Santo Spirito in Sassia"
1,6 Km
Pronto Soccorso Ospedale Oftalmico
1,6 Km
Supermercati Supermercati
Coop
240 m
Pam local
240 m
Punto
670 m
La Esse
750 m
Pam Express
760 m
Negozi Negozi
Carrefour Express
210 m
Doppelganger
350 m
Settimo gelo - Gelateria
630 m
Doppelgänger
680 m
Cliché
680 m
Bar Bar
Bar Tabacchi Epifani Anita
470 m
Haus garten Bagel Bar
470 m
Grande Franco
620 m
Bar
630 m
The Magic Bar
640 m
Ristoranti Ristoranti
Cacio e pepe
110 m
Fjco
460 m
Rossopomodoro
470 m
Baja
470 m
Ai Villini
500 m
Mostra tutto

Caratteristiche

Rif.:
61175318
Piano:
1 di 5 con ascensore (Piano basso)
Camere da letto:
1
Arredamento:
Assente
Condizionamento:
Autonomo
Ascensore:
Mostra tutto
Prezzo Prezzo
€ 540.000
Rata mutuo Rata mutuo
€ 2.576 / mese
Proponi il tuo prezzoProponi il tuo prezzo

Classe Energetica

G
G
G
G
G
G
G
G
G
EP globale non rinnovabile:
175.00 kW h/m² anno
EP globale rinnovabile:
175.00 kW h/m² anno
EP invernale del fabbricato:
EP estiva del fabbricato:
Anno di costruzione:
1952
Riscaldamento:
Autonomo
Tipo impianto:
Ad aria
Tipo alimentazione:
Altro

Ti interessa visionare l'immobile?

Fissa un appuntamento  Fissa un appuntamento

Richiedi informazioni

Clicca su Leggi per aprire l'informativa
* Questi campi sono obbligatori

Calcola il tuo mutuo

Semplice e senza impegno
Anticipo

( % )
Mutuo

( % )

pochi semplici passi

inserisci i tuoi dati
Questionario completato
Grazie per aver richiesto un appuntamento senza impegno con un nostro Consulente del Credito e Assicurativo.

Hai inserito correttamente tutti i dati necessari e a breve riceverai una e-mail con un link da convalidare per inviare i tuoi dati.
Affiliato
Studio Prati Centro Storico Srl
Via Cicerone, 45 00193 Roma (RM)

Il nostro staff


  • Manila Cutarelli
    Coordinatrice

  • Gabriella Donoso
    Affiliata

  • Lorenzo Mariani
    Responsabile

  • Clarissa Serafini
    Affiliata
Via Cicerone, 45 00193 Roma (RM)
Zona: Centro Storico-Prati-Cavour
Mostra su mappa
Orari: Dal lunedì al venerdì 09.00 - 20.00 Sabato 09.00 - 19.30
Affiliato
Studio Prati Centro Storico Srl
Via Cicerone, 45 00193 Roma (RM)

2026 Tecnocasa Franchising S.p.A. - P. IVA 08365160152 - Via Monte Bianco 60/A 20089 Rozzano (MI). Ogni agenzia ha un proprio titolare ed è autonoma. Privacy policy | Policy utilizzo | Cookie policy