Trilocale in vendita

Roma, Via Properzio - Prati Cola Di Rienzo
€ 770.000
3 locali 3 locali
80 Mq 80 Mq
1 bagno 1 bagno

Trilocale in vendita

Roma, Via Properzio - Prati Cola Di Rienzo

Descrizione annuncio

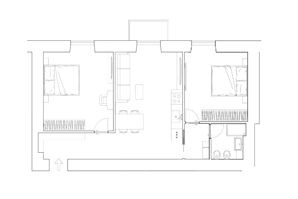
VIA PROPERZIO - Nel cuore del quartiere Prati, proponiamo in vendita un trilocale di 80 mq, situato al terzo piano alto di un signorile stabile d’epoca dotato di ascensore. Gli spazi interni si compongono di un ampio e luminoso soggiorno con angolo cottura, perfetto per momenti di convivialità e relax, due comode camere da letto, un servizio e un balcone. L’appartamento verrà consegnato completamente ristrutturato, utilizzando materiali di qualità e soluzioni funzionali che rendono gli ambienti moderni e accoglienti. L'esposizione totalmente esterna assicura una luminosità naturale durante l’intero arco della giornata, valorizzando ogni ambiente della casa. La posizione dell’immobile è uno dei suoi maggiori punti di forza, inserito in un contesto residenziale tranquillo ma allo stesso tempo vivace, l’appartamento si trova a pochi passi da tutti i principali servizi, quali negozi, supermercati, scuole, uffici e ristoranti, oltre a essere ottimamente collegato grazie alla presenza di numerosi mezzi di trasporto pubblico. La vicinanza ai principali luoghi di interesse storico e culturale della città rende questa soluzione particolarmente interessante anche come investimento di pregio. Ideale per chi desidera vivere in una casa elegante, luminosa e pronta all’uso in uno dei quartieri più iconici di Roma, oppure per chi è alla ricerca di un immobile di valore da mettere a reddito.

Perché scegliere questo immobile:

- Per la posizione ottima;

- Per gli spazi ben distribuiti;

- Ottimo investimento

Classe G. Ep175 Kwh/mq/a.

Per prenotare il tuo appuntamento inviaci un messaggio al 3755946233.

Mostra tutto

Nelle vicinanze

Trasporto pubblico Trasporto pubblico
Ottaviano
Ottaviano
510 m
Lepanto
Lepanto
780 m
Città del Vaticano
Città del Vaticano
990 m
stazione di Roma San Pietro
stazione di Roma San Pietro
1,2 Km
Risorgimento/S. Pietro
Risorgimento/S. Pietro
250 m
Ricariche auto elettriche Ricariche auto elettriche
Garage Properzio | EnelX
150 m
Eneldrive Risorgimento
400 m
Eneldrive Cola di Rienzo
740 m
Parcheggio Mercato Trionfale - Musei Vaticani
810 m
Eneldrive Stazione Roma S.Pietro
1,2 Km
Scuole Scuole
Scuole
190 m
LUMSA
260 m
Berlitz
490 m
Istituto Comprensivo Dante Alighieri
510 m
Pontificia Università Urbaniana
700 m
Farmacia Farmacia
Farmacia
250 m
Farmacia Germanico
350 m
Farmacia
390 m
Parapharmacia
410 m
Farmacia Vaticana
430 m
Ospedali Ospedali
Ospedale Santo Spirito in Sassia
500 m
Casa di Cura Santa Famiglia
510 m
Pronto Soccorso Ospedale "Santo Spirito in Sassia"
540 m
Ospedale Bambino Gesù
930 m
Pronto Soccorso Ospedale Oftalmico
1,1 Km
Supermercati Supermercati
in Coop
40 m
Pam Local
190 m
Carrefour Express
210 m
Pam Express
340 m
La Esse
360 m
Negozi Negozi
Ci mandino paramenti
140 m
Liu Jo
160 m
Paul Bianco
160 m
Desigual
160 m
Fellini Lady
170 m
Bar Bar
Ted
170 m
Cafe' dei Desideri
180 m
Bar L'ottagono
260 m
Bar delle Grazie
290 m
Varsity Bisroot Bar
390 m
Ristoranti Ristoranti
Il Sorpasso
10 m
Calabascio
30 m
Taverna Angelica
80 m
Les Étoiles
90 m
La Zanzara
130 m
Mostra tutto

Caratteristiche

Rif.:
61156077
Piano:
3 di 5 con ascensore (Piano alto)
Balconi:
1
Camere da letto:
2
Arredamento:
Assente
Condizionamento:
Autonomo
Mostra tutto
Prezzo Prezzo
€ 770.000
Rata mutuo Rata mutuo
€ 3.635 / mese
Proponi il tuo prezzoProponi il tuo prezzo

Classe Energetica

G
G
G
G
G
G
G
G
G
EP globale non rinnovabile:
175.00 kW h/m² anno
EP globale rinnovabile:
175.00 kW h/m² anno
EP invernale del fabbricato:
EP estiva del fabbricato:
Anno di costruzione:
1900
Riscaldamento:
Autonomo
Tipo impianto:
Ad aria
Tipo alimentazione:
Altro

Ti interessa visionare l'immobile?

Fissa un appuntamento  Fissa un appuntamento

Richiedi informazioni

Clicca su Leggi per aprire l'informativa
* Questi campi sono obbligatori

Calcola il tuo mutuo

Semplice e senza impegno
Anticipo

( % )
Mutuo

( % )

pochi semplici passi

inserisci i tuoi dati
Questionario completato
Grazie per aver richiesto un appuntamento senza impegno con un nostro Consulente del Credito e Assicurativo.

Hai inserito correttamente tutti i dati necessari e a breve riceverai una e-mail con un link da convalidare per inviare i tuoi dati.
Affiliato
Studio Prati Centro Storico Srl
Via Cicerone, 45 00193 Roma (RM)

Il nostro staff


  • Manila Cutarelli
    Coordinatrice

  • Gabriella Donoso
    Affiliata

  • Lorenzo Mariani
    Responsabile

  • Clarissa Serafini
    Affiliata
Via Cicerone, 45 00193 Roma (RM)
Zona: Centro Storico-Prati-Cavour
Mostra su mappa
Orari: Dal lunedì al venerdì 09.00 - 20.00 Sabato 09.00 - 19.30
Affiliato
Studio Prati Centro Storico Srl
Via Cicerone, 45 00193 Roma (RM)

2026 Tecnocasa Franchising S.p.A. - P. IVA 08365160152 - Via Monte Bianco 60/A 20089 Rozzano (MI). Ogni agenzia ha un proprio titolare ed è autonoma. Privacy policy | Policy utilizzo | Cookie policy